Brașovul ridică primul spital public după 1989! Finanțare record de 578 milioane lei pentru un nou centru medical modern.
Brașovul face un pas major în dezvoltarea infrastructurii medicale: autoritățile locale au obținut cea mai mare finanțare nerambursabilă din istoria orașului, în valoare de aproximativ 578 de milioane de lei, pentru construirea unui nou Spital de Pneumoftiziologie și Boli Infecțioase.
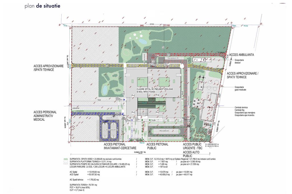
Primarul George Scripcaru a anunțat semnarea contractului de finanțare pe 28 aprilie, subliniind că este primul spital public construit de la zero în municipiu după 1989. Proiectul este realizat de Primărie, cu sprijinul Ministerul Sănătății, urmând ca unitatea medicală să fie transferată ulterior către Consiliul Județean.
Noua unitate sanitară va avea 279 de paturi, dintre care majoritatea pentru spitalizare continuă, dar și locuri dedicate terapiei intensive și spitalizării de zi. Clădirea va fi organizată în mai multe corpuri și va găzdui secții esențiale precum pneumologie (adulți și copii), boli infecțioase, ATI, chirurgie toracică, cardiologie și îngrijiri paliative.
Proiectul propune un concept modern, bazat pe ideea de „arhitectură care vindecă”, cu spații luminoase și deschise, menite să ofere confort atât pacienților, cât și aparținătorilor. Spitalul va fi construit după standarde energetice ridicate (n-ZEB+), urmând să fie dotat cu panouri fotovoltaice, pompe de căldură și sisteme eficiente de climatizare.
Brașovul ridică primul spital public după 1989! Finanțare record de 578 milioane lei pentru un nou centru medical modern





Valoarea totală a investiției depășește 584 de milioane de lei, din care peste 577 de milioane reprezintă fonduri nerambursabile. Contribuția municipalității este de aproximativ 6,4 milioane de lei, iar finanțarea este asigurată printr-un program național derulat de Ministerul Investițiilor și Proiectelor Europene.
Lucrările de proiectare și execuție sunt realizate de un consorțiu de firme de construcții și inginerie, iar autoritățile susțin că proiectul este suficient de avansat pentru ca șantierul să înceapă într-un timp scurt.
Investiția este considerată una strategică pentru sistemul medical local, în contextul nevoii tot mai mari de servicii moderne pentru tratarea bolilor respiratorii și infecțioase.
Mai multe știri pe republikanews.ro.
Ne găsești pe pagina de Facebook RepublikaNews